heart
recent
Naposledy prezerané:
Žiadne domy
katalógový projekt
1.500€
akciová cena projektu
1.419€
katalógová cena na kľúč
135.470 €
cena z konfigurátora
135.470 €
katalógový projekt
1.450€
akciová cena projektu
1.369€
katalógová cena na kľúč
134.540 €
cena z konfigurátora
134.540 €
Objednať
Info

Zdielať dom mailom

Projekt domu MAJA 3
Projekt domu MAJA 3

Pri navrhovaní projektov domov vždy dbáme na to, aby pôdorys a celkové dispozičné riešenie domu bol premyslený do najmenších detailov, a tým sa získa plnohodnotný a funkčný domov. Vždy sa snažíme o to, aby dom bol plne funkčný nielen v interiéri, ale mal zaujímavý aj exteriér. Vyberte si tento rodinný dom na základe jeho rozumného pôdorysu!

Zrkadlový obraz

Projekt domu MAJA 3

Legenda

  • externé priestory
  • kúpeľne a WC
  • obývacia izba a ostatné miestnosti
  • izby a kancelárie
  • strecha/konzola
  • označenie prízemia na druhom podlaží

Legenda miestností

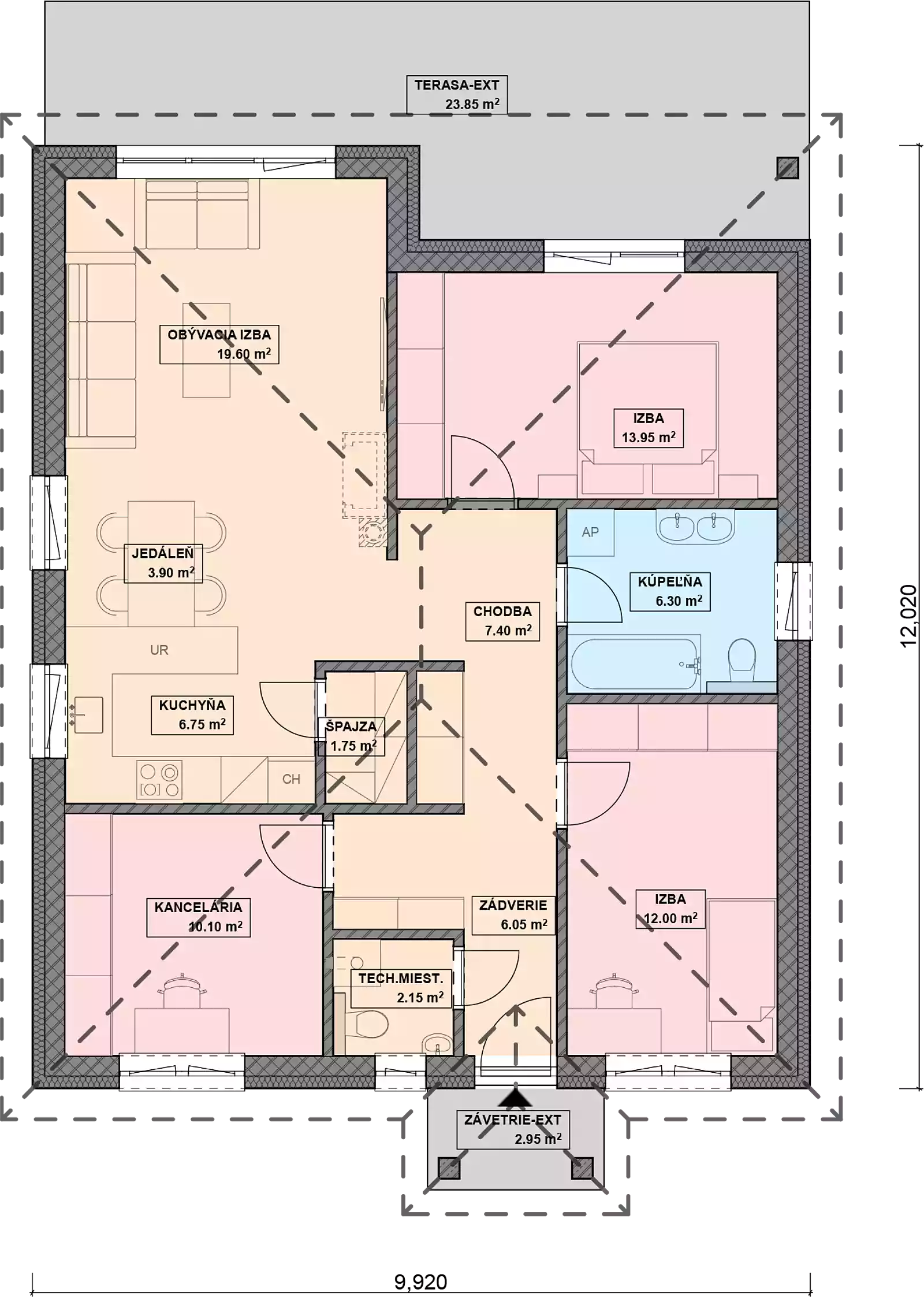
Prízemie
Obývacia izba
19,65 m²
Kuchyňa
6,75 m²
Špajza
1,75 m²
Jedáleň
3,95 m²
Izba
12,05 m²
Izba
13,95 m²
Kúpeľňa
6,30 m²
Tech. miestnosť
2,15 m²
Zádverie
6,10 m²
Chodba
7,45 m²
Kancelária
10,15 m²
Úžitková plocha
90,25 m²
Závetrie
2,95 m²
Terasa
23,85 m²
Spolu
117,05 m²